Stadtplanung
Bauleitplanung
Planungsmanagement
Jeder Ort verlangt ein eigenes Konzept. Wir arbeiten täglich daran!
rheinruhr.stadtplaner sind mit Sitz in Essen bereits seit 1995 sowohl für öffentliche als auch private Auftraggeber im Bereich der Stadtplanung und der Bauleitplanung tätig. Die Projektarbeit reicht dabei von den räumlichen Schwerpunkten Ruhrgebiet und Niederrhein bis in die angrenzenden Regionen.
Wir begleiten unsere Auftraggeber von der städtebaulichen Konzeption über die Projektplanung und -entwicklung bis zur Satzung des Bebauungsplans. Wir kennen die fachlichen Anforderungen für alle Themenbereiche wie Wohnen, Gewerbe, Einzelhandel, Freizeit und sonstige Sondervorhaben. Dabei arbeiten wir mit zahlreichen Fachplanern und Gutachtern zusammen.
Wir unterstützen auch Sie gerne bei der planerischen Entwicklung Ihres Vorhabens.

Unsere Leistungen
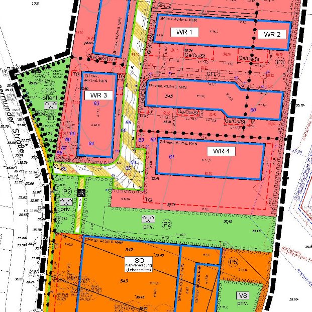
Die Kernkompetenz von rheinruhr.stadtplaner ist die Bauleitplanung. Wir entwickeln Bebauungspläne vom ersten Konzept bis zur rechtssicheren Satzung – strukturiert, umsetzungsorientiert und im engen Dialog mit allen Beteiligten. Oft beginnt unsere Arbeit mit der Analyse der räumlichen Situation und der Entwicklung einer funktionalen und städtebaulichen Struktur für das Plangebiet. In anderen Fällen erarbeiten wir einen rechtssicheren Bebauungsplan auf der Grundlage bestehender städtebaulicher oder architektonischer Konzepte externer Architekten oder Projektentwickler. In jedem Fall begleiten wir den Auftraggeber auch bei der Prozesssteuerung und in der Abstimmung mit den zuständigen Behörden.
rheinruhr.stadtplaner erstellen Bebauungspläne für sämtliche Nutzungen wie Wohnen, Gewerbe, Einzelhandel, Freizeit oder besondere Vorhaben und binden bei Bedarf erfahrene Fachplaner und Gutachter aus Bereichen wie Umwelt, Verkehr, Immissionsschutz oder Bodenschutz in den Planungsprozess ein. Auch deren Auswahl, Beauftragung und Koordination übernehmen wir im Sinne einer integrierten Planung.

Stadtplanung
Wir gestalten mit Ihnen die Zukunft unserer Städte: Von attraktiven Wohnquartieren über leistungsfähige Gewerbegebiete bis hin zu lebendigen Stadtteil- und Entwicklungskonzepten. Auf der Grundlage detaillierter Ortsanalysen und grundsätzlicher konzeptioneller Strukturkonzepte schaffen wir mit klaren Masterplänen und durchdachten Gestaltungskonzepten die Grundlage für lebenswerte, funktionale und identitätsstiftende Stadträume.

Bauleitplanung
Unsere Kernkompetenz liegt im Bereich der Bauleitplanung: Hierzu zählt die Erarbeitung von Bebauungsplänen, vorhabenbezogenen Bebauungsplänen und die Änderung von Flächennutzungsplänen mit den dazugehörigen Texten und Plänen und der Integration gutachterlicher Fachbeiträge, aber ebenso die Erstellung von Beschlussvorlagen für die politischen Gremien und Bearbeitung des Abwägungsprozesses – inhaltlich und formal. So begleiten wir Ihr Projekt – verlässlich, rechtlich fundiert und effizient – bis zum Satzungsbeschluss.

Planungsmanagement
Wir sorgen für eine reibungslose Umsetzung Ihrer Projekte: Das Planungsmanagement inkludiert je nach Bedarf die Öffentlichkeitsbeteiligung, die fachgerechte Behördenabstimmung, die realistische Projekt-Ablaufplanung, sowie die Koordination der Beteiligten. Diese Prozesse werden von rheinruhr.stadtplaner fachlich fundiert moderiert und dokumentiert. Darüber hinaus begleiten wir städtebauliche Gutachterverfahren – von der Programmentwicklung über die Auslobung und Vorprüfung bis hin zur Jury-Information und Dokumentation.
Unsere Projekte
rheinruhr.stadtplaner bearbeiten am Standort Essen vielfältige Aufgabenstellungen der Stadtplanung für verschiedenste öffentliche und private Auftraggeber. Die Projektarbeit reicht dabei von den räumlichen Schwerpunkten Ruhrgebiet und Niederrhein bis in die angrenzenden Regionen. rheinruhr.stadtplaner verfügen über die Kompetenz, für alle Themenbereiche - Wohnen, Gewerbe, Einzelhandel, Freizeit und sonstige Sondervorhaben - die jeweiligen fachlichen Anforderungen auf der Ebene des Städtebaus und der Bauleitplanung zu definieren und eine rechtssichere Bebauungsplanung zu entwickeln.
450 +
Abgeschlossene Projekte seit 2007
40 +
Laufende und beauftragte Projekte
175 +
Öffentliche und private Auftraggeber

Karlsforster Straße, Kaarst
1. Preis im städtebaulichen Wettbewerb zusammen mit planB Landschaftsarchitekten (Duisburg) und SUD[D]en Gärten & Landschaft (Krefeld), sowie die bauleitplanerische Umsetzung des Entwurfes.

Henri-Dunant-Straße, Essen
Betreuung des Wettbewerbsverfahrens und bauleitplanerische Umsetzung des Entwurfes von pbs architekten (Aachen) für gentes Wohnen GmbH, Düsseldorf.

Rahmerbuschfeld, Duisburg
Städtebauliches Strukturkonzept und bauleitplanerische Umsetzung eines Wohnquartiers mit Einzelhandel im Auftrag von Wilma Wohnen West Projekte GmbH (Ratingen).
Unser Team
rheinruhr.stadtplaner bestehen aus einem eingespielten Kollegium von Stadtplanern und Stadtplanerinnen. Gemeinsam bringen wir langjährige Erfahrung im Bereich der Stadtplanung und der Bauleitplanung mit. Die enge Zusammenarbeit und das gewachsene Miteinander zeichnen unser Team aus: Wir kommunizieren offen, unterstützen uns gegenseitig und pflegen ein starkes Gemeinschaftsgefühl - die Grundlage für unsere zuverlässige und effiziente Projektarbeit.
Wir arbeiten
strukturiert. transparent. effizient.
Wir denken
langfristig. vernetzt. verantwortungsbewusst.
Wir stehen für
Zusammenarbeit. Erfahrung. Verlässlichkeit.

Henning Schmidt

Sabrina Stiebling
Dipl. - Ing. Raumplanung
Stadtplanerin AKNW
Seit 2011 im Team

Christin Kocyan
Dipl. - Ing. Raumplanung
Stadtplanerin AKNW
Seit 2019 im Team

Katja Gadziak
Kontaktieren Sie uns!
Wir freuen uns darauf, gemeinsam mit Ihnen die Zukunft zu gestalten: mit innovativen Konzepten in der Stadtplanung, die lebendige Quartiere, attraktive Wirtschaftsstandorte und nachhaltige Stadträume schaffen. In der Bauleitplanung übersetzen wir Ihre Ideen in klare, rechtssichere Pläne und begleiten den gesamten Prozess – zuverlässig, transparent und effizient. Dank unseres umfassenden Planungsmanagements sorgen wir dafür, dass Ihr Projekt reibungslos koordiniert, professionell moderiert und erfolgreich umgesetzt wird. Kontaktieren Sie uns für ein unverbindliches Angebot und erfahren Sie, wie wir Sie unterstützen können, Ihre Vision in eine starke, zukunftsfähige Realität zu verwandeln.
Formular
Sie erreichen uns schnell und einfach über das unten stehende Kontaktformular.
Jobs
Aktuell schreiben wir keine Stellen aus. Wir freuen uns aber immer über Ihre Initiativbewerbung!
Anfahrt
So können Sie uns finden:
Adresse
Sibyllastraße 9
(Hofgebäude)
45136 Essen
ÖPNV
S-Bahn "Essen Süd"
Straßenbahn 105 "Essen Süd"
Busse 160 / 161 "Karolinenstraße"
Stellplätze
Kostenfreie Stellplätze finden Sie in der Sibyllastraße.

